ƾ¾Ý¡¶ÖлªÈËÃñ¹²ºÍºÓɽµØÖÎÀí·¨¡·¡¢¹ú¶È·¢Õ¹ºÍ¶¦ÐÂίԱ»á¡¶¹ØÓÚÓ¡·¢¹ú¶È·¢Õ¹¶¦ÐÂί³Á´ó¹Ì¶¨×ʲúͶ×ÊÏîÄ¿Éç»á²»±ä·çÏÕÆÀ¹ÀÔÝÐз¨×ÓµÄ֪ͨ¡·£¨·¢¸ÄͶ×Ê¡²2012¡³2492ºÅ£©¡¢¡¶¹ú¶È·¢Õ¹¶¦ÐÂί°ì¹«Ìü¹ØÓÚÓ¡·¢<³Á´ó¹Ì¶¨×ʲúͶ×ÊÏîÄ¿Éç»á²»±ä·çÏÕ·ÖÎöƪÕÂºÍÆÀ¹À»ã±¨¼ÙÔì¸ÙÁ죨ÊÔÐУ©>µÄ֪ͨ¡·£¨·¢¸Ä°ìͶ×Ê[2013]428 ºÅ£©¡¢¹ã¶«Ê¡¶¦Ðºͷ¢Õ¹Î¯Ô±»á¡¶¹ØÓÚÓ¡·¢³Á´óÏîÄ¿Éç»á²»±ä·çÏÕÆÀ¹ÀÔÝÐз¨×ÓµÄ֪ͨ¡·£¨·¢¸ÄͶ×Ê¡²2012¡³1095ºÅÒÔ¼°Óйز¿ÃŵÄÓйØÒªÇó£¬ÏÖ¶Ô¶«Ý¸ÊÐÍò½½Ö·Ð´åÉçÇøC05-01µØ¿é¾É³§·¿¡°Èý¾É¡±Ë¢ÐÂÏîÄ¿Éç»á²»±ä·çÏÕÆÀ¹À½øÐÐÐÅÏ¢¹«Ê¾£¬¹«Ê¾ÆÚ¼ä£¬Ó½Ó¸÷½çÈËÊ¿À´µç¡¢À´ÐÅ¡¢À´·ÃµÄ´ó¾Ö·´Ó³Çé¿ö£¬°ä·¢¼û½âºÍ¶¨¼û¡£
Ò»¡¢ÏîÄ¿¸Å¿ö
£¨Ò»£©ÏîÄ¿Ãû³Æ£º¶«Ý¸ÊÐÍò½½Ö·Ð´åÉçÇøC05-01µØ¿é¾É³§·¿¡°Èý¾É¡±Ë¢ÐÂÏîÄ¿
£¨¶þ£©¼¯ÌåµØÆ¤È¨Êôµ¥Ôª£º¶«Ý¸ÊÐÍò½ÇøÐ´å¹É·Ý¾¼Ã½áºÏÉç
£¨Èý£©¹æ»®Óô¦£ºÒ»À๤ҵÓõأ¨M1£©£¨ÏîÄ¿µØ¿é×îÖչ滮ָ±êÒÔÓйز¿Ãżø¶¨Îª×¼£©¡£
£¨ËÄ£©¸üÐÂÀàÐÍ£º¾É³§·¿Ë¢ÐÂ
£¨Î壩¸üÐÂģʽ£º´å¼¯Ìå×ÔÐÐË¢ÐÂ
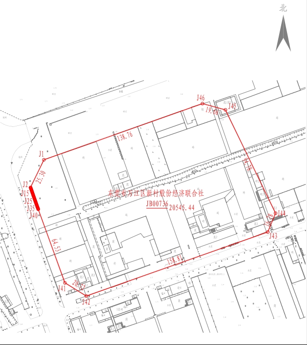
£¨Áù£©Ë¢ÐÂÁìÓò¼°¹æÄ££ºÏîĿλÓÚ¶«Ý¸ÊÐÍò½½Ö·Ð´åÉçÇøÃñӪ·C05-01µØ¿é£¨ÖÇÄÜÔì×÷ÖÐÐÄ£©µØ¿é£¬µØÆ¤×ÜÓõØÃæ»ýΪ20545.44ƽ·½Ã×£¨¾ßÌåÒÔÏÖʵÕÉÁ¿ºÍͳ¼Æ×ÊÁÏΪ׼£©¡£
£¨Æß£©Ë¢ÐÂÁìÓòʾÒâͼÈçÏÂͼËùʾ£º

¶þ¡¢Õ÷Ç󹫼Ҷ¨¼û¶ÔÏó
Ë¢ÐÂÁìÓòÄÚµÄÀûÒæÓйØÕß¼°¿ÉÄÜÊÜÏîĿӰÏìµÄ¾ÓÃñÈËÃñºÍÆóÊÂÒµµ¥Ôª¡£
Èý¡¢Õ÷Ç󹫼Ҷ¨¼ûµÄÖØÒªÄÚÈÝ
£¨Ò»£©¶ÔÏîÖ÷ÕÅÏàʶÇé¿ö£»
£¨¶þ£©¶Ô±¾µØ¾¼Ã·¢Õ¹¡¢ÉúÑľÓסµÄÓ°Ï죻
£¨Èý£©Ë¢ÐÂÆÚ¼äÓ°Ïì´æÔÚµÄÖØÒªÉç»á²»±ä·çÏÕ£»
£¨ËÄ£©±¾ÏîÄ¿ÊÇ·ñÓ°Ïì×ÔÉíÀûÒæ£¬ÓкÎËßÇó£»
£¨Î壩¶ÔÏîÖ÷ÕÅÖ§³ÖÇé¿ö£»
£¨Áù£©¶Ô±¾ÏîÖ÷ÕŶ¨¼ûºÍ½¨Òé¡£
ËÄ¡¢Õ÷Ç󹫼Ҷ¨¼ûµÄÖØÒªÊÂÏî¼°¹«¼Ò²Î¼ÓÖØÒª·½Ê½
¹«¼Ò¿Éͨ¹ýµç×ÓÓʼþ¡¢Ðꝡ¢´«Õæ¡¢µç»°µÈ·½Ê½ÏòÒÔϵ¥Ôª°ä·¢¶ÔÉç»á²»±ä·çÏÕÆÀ¹À¹¤×÷µÄ¶¨¼ûºÍ½¨Òé¡£
£¨Ò»£©Ë¢ÐÂÖ÷Ìå
µ¥ÔªÃû³Æ£º¶«Ý¸ÊÐÍò½ÇøÐ´å¹É·Ý¾¼Ã½áºÏÉç
ÁªÏµÈË£ºÂ¬Î°½
ÁªÏµµç»°£º0769-22773542
µØÖ·£º¹ã¶«Ê¡¶«Ý¸ÊÐÍò½ÇøÐ´å´óз238ºÅ
£¨¶þ£©¼¯ÌåµØÆ¤È¨Êôµ¥Ôª
µ¥ÔªÃû³Æ£º¶«Ý¸ÊÐÍò½ÇøÐ´å¹É·Ý¾¼Ã½áºÏÉç
ÁªÏµÈË£ºÂ¬Î°½
ÁªÏµµç»°£º0769-22773542
µØÖ·£º¹ã¶«Ê¡¶«Ý¸ÊÐÍò½ÇøÐ´å´óз238ºÅ
£¨Èý£©ÆÀ¹Àµ¥Ôª
µ¥ÔªÃû³Æ£º¹ã¶«CA88×ʲúµØÆ¤·¿µØ²úÆÀ¹ÀÓë¹æ»®ÓÐÏÞ¹«Ë¾
ÁªÏµÈË£ºÁºÑàºÉ
ÁªÏµµç»°£º0769-39003333
ÓÊÏ䣺415220305@qq.com
µØÖ·£º¶«ÝÄþԸϳÇÇø»Æ½ð·1ºÅ¶«Ý¸Ìì°²ÊýÂë³ÇBÇø2ºÅ807ºÅ
Îå¡¢¹«Ê¾¹¦·ò
×Ô¹«Ê¾Ö®ÈÕÆð30¸öÌìÈ»ÈÕ¡£
¶«Ý¸ÊÐÍò½ÇøÐ´å¹É·Ý¾¼Ã½áºÏÉç
2024Äê6ÔÂ5ÈÕ